• Proyectos
  • Acerca de
  • Contacto

Cocina Bonanova

Familia V

Concepto | Herencia Moderna

Acabados | Diseño de interiores | Mobiliario | Renders

Año | 2023
Espacio | 31.92
Ubicación | Barcelona, España

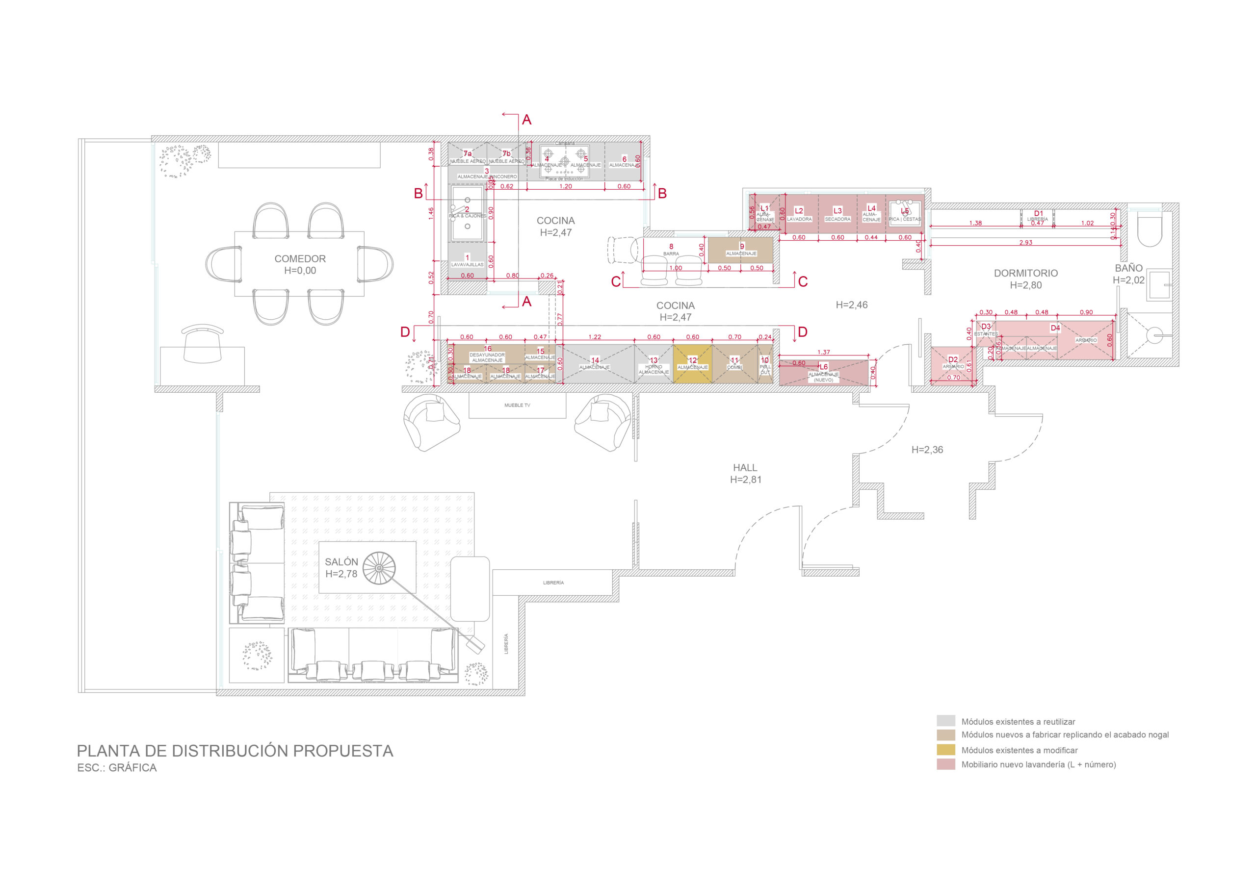
Para este proyecto, la clienta deseaba modernizar su cocina y darle un nuevo look sin perder la esencia de los muebles que ya formaban parte de su hogar. El enfoque fue aprovechar al máximo las estructuras existentes, renovándolas con un acabado en madera de nogal que aporta calidez y sofisticación, complementado con blanco roto para mantener un ambiente luminoso y contemporáneo.

La distribución se replanteó estratégicamente para poder disfrutar de las vistas espectaculares hacia el Tibidabo y la montaña de Collserola mientras cocina o comparte momentos en familia. Las aperrturas hacia el salón y comedor maximizan la luz natural, haciendo que al espacio un lugar donde el entorno exterior se integra armoniosamente con el diseño interior.


Colaboración | Estudio Escobedo