• Proyectos
  • Acerca de
  • Contacto

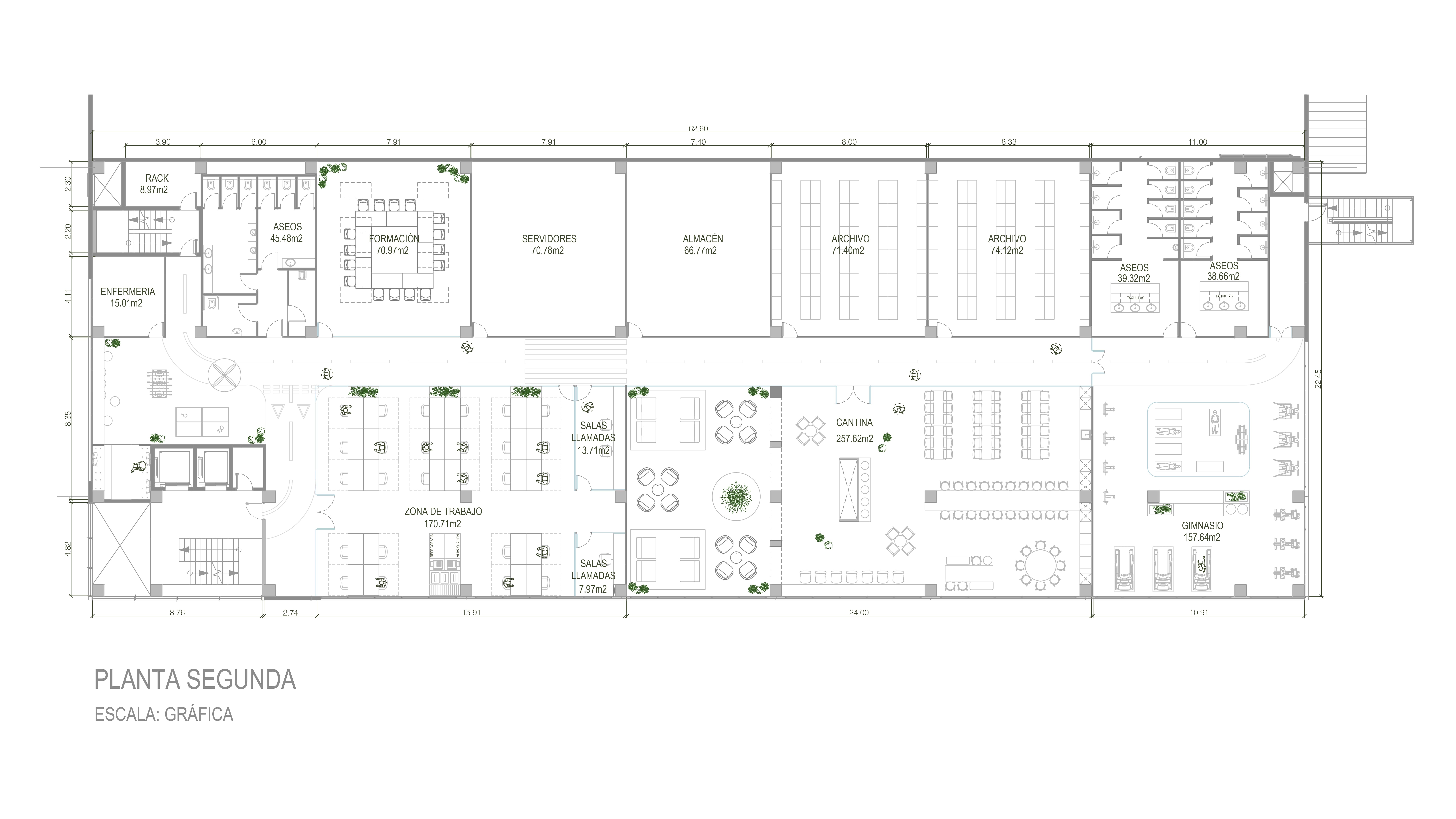
Oficinas Sertrans

Sertrans S.L

Concepto | Ruta Creativa

Acabados | Diseño de interiores | Mobiliario | Renders

Año | 2023
Espacio | 2615.78
Ubicación | Barcelona, España

Este diseño de oficinas de una empresa de transporte logístico buscaba reflejar los valores de la marca a través de un diseño audaz y funcional. Se integraron de manera armoniosa los colores corporativos en un entorno que combina la interacción y el dinamismo. Inspirados en la temática de carretera y los elementos propios del sector logístico, se crearon espacios que evocan movimiento y conectividad.

Se promueve un ambiente de coworking y creatividad, favoreciendo la colaboración entre los empleados. Además, se incluyeron áreas de esparcimiento, gimnasio y salas de descanso, brindando un equilibrio entre trabajo y bienestar. Lo esencial era que el espacio no solo reforzara la identidad de la empresa, sino que también mejora la calidad de vida de sus empleados.


Colaboración | Estudio Escobedo